
Wettbewerb HAUS 9 Landratsamt Strausberg
Begrenzter Realisierungswettbewerb (08/2023) - 1.PREIS
in ARGE mit MRK Architektur Part mbB (Berlin)
Team: Jacob Meyer-Rogge, Franziska Kutsche, Marc Latapie, Max Wetzig
Aus dem Juryprotokoll:
Windrad mit Weitsicht
Der Entwurf besticht durch das selbstverständliche und elegante Zusammenspiel von massivem Bestandsgebäude und leichter Dachaufstockung. Der Erhalt des Giebels und die Ergänzung um eine gefaltete Dachlandschaft, die durch asymmetrisch geneigte Dachflächen gebildet wird, zeigen den respektvollen Umgang mit dem Bestandsgebäude. Neu- und Altbau ergänzen sich spielerisch. Die Dachform versteht sich als Neuinterpretation der Dächer der umliegenden Nachbargebäude. Das eingeschnittene Atrium bezieht sich auf das Motiv des Nachbarhofes, den die Häuser des ehemaligen Landarmen- und Militärinvalidenhauses umschließen. Die Aufstockung erfolgt in Holzbauweise mit einer durch senkrechte Holzlamellen strukturierten Glasfassade. ...

Isometrie städtebaulicher Kontext

Lageplan

Grundraster Neu/Bestand

Fassadenraster Neu/Bestand

Blickachsen / Brandschutzkonzept

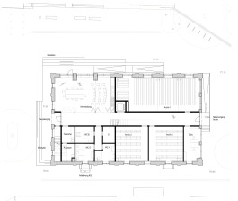
Grundriss EG

Grundriss 1.OG

Fassadenansicht West

Fassadenansicht Nord

Längsschnitt

Fassadendetail